Journal of Jilin University(Engineering and Technology Edition) ›› 2025, Vol. 55 ›› Issue (10): 3242-3252.doi: 10.13229/j.cnki.jdxbgxb.20240089

Previous Articles    

Conceptual design and feasibility of ultra-high-performance steel-shelled concrete continuous rigid-frame bridge

Shi-ming LIU1,2(),Wei ZHANG2,Yin-ping MA3,Yong-jian LIU3()   

  1. 1.International Joint Research Lab for Eco-building Materials and Engineering of Henan,North China University of Water Resources and Electric Power,Zhengzhou 450045,China
    2.School of Civil Engineering and Communication,North China University of Water Resources and Electric Power,Zhengzhou 450045,China
    3.School of Civil Engineering,Chongqing University,Chongqing 400045,China
  • Received:2024-01-23 Online:2025-10-01 Published:2026-02-03
  • Contact: Yong-jian LIU E-mail:liushm@ncwu.edu.cn;liuyongjian@chd.edu.cn

Abstract:

In this paper, a novel type of super-long-span continuous rigid-frame bridge was presented, ultra-high-performance steel-shelled concrete(UHP-SSC) continuous rigid-frame bridge with box girder, with steel shell filled with ultra-high-performance-concrete(UHPC) and perfobond leiste stiffeners(PBL) as fundamental components unit. UHP-SSC box girder employed UHPC to bear pressure, and steel shells bear tension, which may be used as the UHPC pouring non-removable formwork, allowing the light self-weight and high strength properties of steel and UHPC to be completely exploited. Conceptual design of the 400-meter-long continuous rigid-frame bridge with UHP-SSC box girder was studied, the results indicated that the thickness of top plate, bottom plate, and web plate of the UHP-SSC box girder can be greatly lowered. The suitable side-to-mid span ratio new continuous righid-frame bridge is 0.5~0.65, and the reasonable beam height ratio of the pier and midspan is 2.59~3.59, and the height of box girder at the pier accounts for 1/26~1/32 of the main span. The strength and stiffness of the new box girder meet the mechanical requirements of the code for fully prestressed concrete structure. The superstructure weight per square meter of UHP-SSC continuous rigid-frame bridge is reduced by approximately 132.8%, 76.8%, 324.4% and 338.3% respectively, when compared to mixed beam continuous rigid-frame bridge, arch bridge, cable-stayed bridge, and suspension bridge with similar span, and the carbon emissions are also reduced by about 28.5%, 57.1%, 14.1% and 55.7%. The superstructure cost of the new UHP-SSC continuous rigid frame bridge is increased by about 3.1% and 1.3% respectively, when compared to the mixed beam continuous rigid-frame bridge and arch bridge, and decreased by about 26% and 46.1% respectively, when compared to the cable-stayed bridge and suspension bridge. The new UHP-SSC continuous rigid-frame bridge has evident structural light self-weight properties, better economic and environmental performance, and has strong competitiveness in long-span beam bridges, as well as excellent technical popularization and application possibilities.

Key words: bridge engineering, box girder, ultra-high-performance steel-shelled concrete, continuous rigid-frame bridge, conceptual design

CLC Number: 

  • U448.23

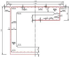
Fig.1

Basic component unit of UHP-SSC box section"

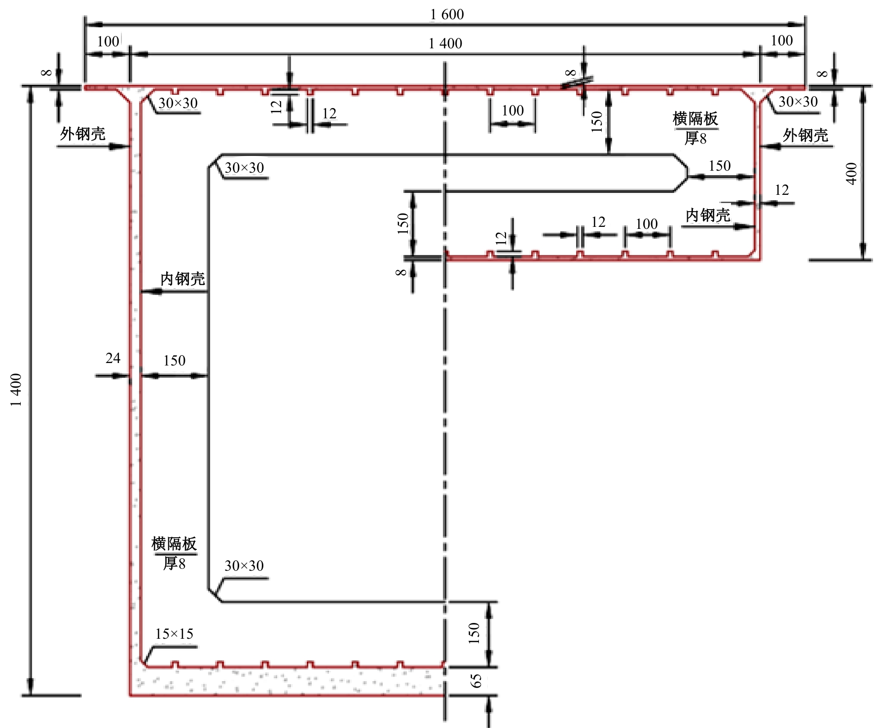
Fig.2

Box section structure of UHP-SSC"

Fig.3

Design process of key parameters of UHP-SSC box girder"

Table 1

Material properties of UHPC"

强度等级弹性模量/GPa泊松比线膨胀系数徐变系数容重/(kN·m-3轴向抗压强度/MPa轴向抗拉强度/MPa
fcu,kfckfcdftkftd
UC12045.00.21.1×10-50.2251208457.55.84

Fig.4

Finite element model of UHP-SSC continuous rigid-frame bridge"

Fig. 5

Relationship between UHP-SSC box girder’s side-to-mid span ratio and strain energy per unit length"

Fig.6

Relationship between deflection and ratio of beam height at pier to midspan"

Table 2

Maximum compressive stress of bottom slab at pier and midspan deflection of box-girder"

墩顶箱梁底板厚度/m最大压应力/MPa挠度/mm挠度与主跨跨径比
0.6-43.7-307.71/963
0.7-40.7-301.81/981
0.8-38.3-296.81/998
0.9-36.4-292.41/1 013
1.0-34.8-288.61/1 026
1.1-33.5-285.31/1 038
1.2-32.5-282.31/1 049
1.3-31.6-279.71/1 059
1.5-30.2-275.21/1 076

Fig.7

Relationship between thickness of bottom plateat pier of box-girder and the maximum compressive stress and midspan deflection"

Fig.8

Structure with pier and midspan section of UHP-SSC box-girder(unit: cm)"

Table 3

Comparison of superstructure’s main technical and economic indicators"

序号桥名(结构类型)跨径布置/m

桥宽

/m

上部结构混凝土用量/m3上部结构钢材用量/t上部结构总质量/t

上部结构

自质量/

(t·m-2

上部结构造价/(万元·m-2上部结构碳排放量/(t·m-2
1本文(UHP-SSC连续刚构桥)230+400+230167 943.06 118.925 976.41.8881.2269.753
2重庆石板坡长江大桥复线桥(混合梁连续刚构桥)

87.85+4×138+

330+133.75

1932 332.011 332.092 162.04.3951.18812.536
3巫峡长江大桥(中承式钢管混凝土拱桥)460199 224.36 120.129 180.83.3391.21015.319
4干溪沟1号桥(斜拉桥)155+360+15527.155 297.87 251.7145 496.28.0131.54511.132
5红光大桥(自锚式悬索桥)3802529 179.05 672.078 619.58.2761.79115.190

Fig.9

Comparison of superstructure’s main technical and economic indicators of different types of bridge"

[1] Li J J, Zhang X Y, Wang X D. The influence of buckling mode and buckling stability coefficient of rigid-frame bridge during construction in cold region[J]. Geofluids, 2022, No.5690355.
[2] Chen C, Wang X Y, Lin Q D, et al. A closure jacking force calculation algorithm for curved prestressed concrete continuous rigid-frame bridges with asymmetric cantilevers and piers[J]. Mathematical Problems in Engineering, 2022: No.7408232.
[3] Zeng X Z, Deng K L, Wang Y C, et al. Field investigation and numerical analysis of damage to a high-pier long-span continuous rigid frame bridge in the 2008 wenchuan earthquake[J]. Journal of Earthquake Engineering, 2021: 26(6):5204-5220.
[4] Cui S G, Guo C, Zeng G, et al. Influence of hydrodynamic pressure on fragility of high-pier continuous rigid frame bridge subjected to ground motion[J]. Ocean Engineering, 2022: No.112516.
[5] Zhao J G, Jia H Y, Zhan Y L. Seismic vulnerability analysis of multi-main-span high pier continuous rigid-frame bridge in terms of cloud method[J]. Journal of Civil Engineering, 2023, No.12205.
[6] 彭元诚. 大跨度空腹式连续刚构桥设计理论与方法[J]. 桥梁建设, 2020, 50(1): 74-79.
Peng Yuan-cheng. Design theories and methods for long-span open-web continuous rigid-frame bridge[J]. Bridge Construction, 2020, 50(1): 74-79.
[7] 宋随弟, 陈克坚, 袁明. 波形钢腹板连续刚构桥极限跨度研究[J]. 桥梁建设, 2017, 47(4): 72-77.
Song Sui-di, Chen Ke-jian, Yuan Ming, et al. Study of ultimate spans of continuous rigid-frame bridges with corrugated steel webs[J]. Bridge Construction, 2017, 47(4): 72-77.
[8] 李立峰, 蒋启昊, 王连华, 等. 变截面波形钢腹板-UHPC组合箱梁剪应力试验[J]. 中国公路学报, 2023, 36(5): 150-162.
Li Li-feng, Jiang Qi-hao, Wang Lian-hua, et al. Shear stress test of non-prismatic composite box girders with corrugated steel webs and UHPC[J]. China Journal of Highway and Transport, 2023,36(5): 150-162.
[9] 李磊, 王昌将, 陈向阳, 等. 鱼山大桥通航孔桥钢箱梁设计关键技术[J]. 桥梁建设, 2019, 49(5): 79-84.
Li Lei, Wang Chang-jiang, Chen Xiang-yang, et al. Key design techniques for steel box girder in navigational channel bridge of Yushan bridge[J]. Bridge Construction, 2019,49(5): 79-84.
[10] 肖金军, 何伟能, 李纯, 等. 基于配束和材料优化的连续刚构桥下挠控制技术[J]. 桥梁建设, 2021, 51(6): 31-38.
Xiao Jin-jun, He Wei-neng, Li Chun, et al. Deflection control techniques based on prestressing tendons arrangement and material optimization for continuous rigid-frame bridge[J]. Bridge Construction, 2021, 51(6): 31-38.
[11] 王华, 王龙林, 张子墨, 等. 基于裂缝宽度变化的连续刚构桥安全性预警技术[J]. 吉林大学学报:工学版, 2023, 53(6): 1650-1657.
Wang Hua, Wang Long-lin, Zhang Zi-mo, et al. Safety early warning technology of continuous rigid frame bridges based on crack width variation[J]. Journal of Jilin University(Engineering and Technology Edition), 2023, 53(6): 1650-1657.
[12] 梅晓亮, 张志强. 港珠澳大桥深水区非通航孔桥钢箱梁架设线形分析[J]. 桥梁建设, 2016, 46(1): 106-110.
Mei Xiao-liang, Zhang Zhi-qiang. Analysis of installation geometric shapes of steel box girder of non-navigable span bridge of Hong Kong-Maco bridge over deep water area[J]. Bridge Construction, 2016,46(1): 106-110.
[13] 方明山, 肖汝诚, 王俊颜, 等. 跨海桥梁工程UHPC应用与箱梁试设计研究[J]. 世界桥梁, 2021, 49(5): 1-8.
Fang Ming-shan, Xiao Ru-cheng, Wang Jun-yan, et al. Application of UHPC in sea-crossing bridge project and trial design of UHPC box girder[J]. World Bridges, 2021, 49(5): 1-8.
[14] 赵秋, 陈平, 陈宝春, 等. 装配式钢-UHPC组合桥面板试设计及性能研究[J]. 桥梁建设, 2018, 48(1):94-99.
Zhao Qiu, Chen Ping, Chen Bao-chun, et al. Study of trial design and performance of assembled steel and UHPC composite bridge deck[J]. Bridge Construction, 2018, 48(1):94-99.
[15] 朱劲松, 秦亚婷, 刘周强. 预应力UHPC-NC组合梁截面优化设计[J]. 吉林大学学报:工学版, 2023, 53(11): 3151-3159.
Zhu Jin-song, Qin Ya-ting, Liu Zhou-qiang. Section optimization design of prestressed UHPC-NC composite beams[J]. Journal of Jilin University(Engineering and Technology Edition), 2023, 53 (11): 3151-3159.
[16] 邵旭东, 詹豪, 雷薇, 等. 超大跨径单向预应力UHPC连续箱梁桥概念设计与初步实验[J]. 土木工程学报, 2013, 46(8): 83-89.
Shao Xu-dong, Zhan Hao, Lei Wei, et al. Conceptual design and preliminary experiment of super-long-span continuous box-girder bridge composed of one-way prestressed UHPC[J]. China Civil Engineering Journal, 2013, 46(8): 83-89.
[17] 刘勇, 邵旭东, 詹豪. 主跨400 m的UHPC连续梁桥优化设计[J]. 公路交通科技, 2014, 31(8): 83-90.
Liu Yong, Shao Xu-dong, Zhan Hao, et al. Optimization design for UHPC continuous girder bridge with 400 m main span[J]. Journal of Highway and Transportation Research and Development, 2014, 31(8): 83-90.
[18] 邱明红, 邵旭东, 甘屹东, 等. 单向预应力UHPC连续箱梁桥面体系优化设计研究[J]. 土木工程学报, 2017, 50(11): 87-97.
Qiu Ming-hong, Shao Xu-dong, Gan Yi-dong, et al. Research on optimal design of deck system in longitudinal prestressed UHPC continuous box girder bridge[J].China Civil Engineering Journal, 2017, 50(11): 87-97.
[19] 贾丽君, 林赞笔, 袁勇根, 等. 预应力UHPC连续刚构桥的优化设计[J]. 沈阳工业大学学报, 2017, 39(5): 591-595.
Jia Li-jun, Lin Zan-bi, Yuan Yong-gen, et al. Optimization design for prestressed UHPC continuous rigid frame bridge[J]. Journal of Shenyang University of Technology, 2017, 39(5): 591-595.
[20] 陈宝春, 李聪, 黄伟, 等. 超高性能混凝土收缩综述[J]. 交通运输工程学报, 2018, 18(1): 13-28.
Chen Bao-chun, Li Cong, Huang Wei, et al. Review of UHPC shrinkage[J]. Journal of Traffic and Transportation Engineering, 2018, 18(1): 13-28.
[21] 李传习, 方昌乐, 张永明, 等. 新型组合桥面板UHPC收缩效应足尺试验[J]. 中国公路学报, 2023, 36(6): 94-106.
Li Chuan-xi, Fang Chang-le, Zhang Yong-ming, et al. Full-scale experiment on UHPC shrinkage effect of innovative composite bridge deck[J]. China Journal of Highway and Transport, 2023,36(6): 94-106.
[22] 史占崇, 苏庆田, 陈亮. 钢-UHPC组合桥面板中焊接栓钉的疲劳性能及设计布置方法[J]. 中国公路学报, 2023, 36(6): 107-122.
Shi Zhan-chong, Su Qing-tian, Chen Liang. Fatigue behavior and design layout method of welded stud connectors in steel-UHPC composite bridge deck[J]. China Journal of Highway and Transport, 2023,36(6): 107-122.
[23] 张清华, 程震宇, 邓鹏昊, 等. 新型钢-UHPC组合桥面板抗弯承载力模型试验与理论分析方法[J]. 土木工程学报, 2022, 55(3): 47-64.
Zhang Qing-hua, Cheng Zhen-yu, Deng Peng-hao, et al. Experimental study and theoretical method on flexural capacity of innovative steel-UHPC composite bridge decks[J].China Civil Engineering Journal, 2022,55(3):47-64.
[24] 姜磊,刘永健,周绪红,等.钢管混凝土组合结构桥梁设计原理与技术发展综述[J].中国公路学报,2025,38(3):278-302.
Jiang Lei, Liu Yongjian, Zhou Xuhong, et al. Review on design principles and technical development of concrete-filled steel tube composite bridge structures [J]. China Journal of Highway and Transport, 2025, 38(3): 278-302.
[25] 刘路明, 方志, 刘福财, 等. 室内环境下UHPC的收缩徐变试验和预测[J]. 中国公路学报, 2021, 34(8):35-44.
Liu Lu-ming, Fang Zhi, Liu Fu-cai, et al. Experimental study on the shrinkage and creep of UHPC in indoor environments[J]. China Journal of Highway and Transport, 2021, 34(8):35-44.
[26] 广东省建筑设计研究有限公司, 湖南大学. 装配式超高性能混凝土市政桥梁结构技术规范: DBJ/T 15-244-2022[M]. 北京: 中国城市出版社, 2022.
[1] Liang FAN,Wen ZENG,Qiang WEN,Fu-yu ZHAO,Ying-ming XU. Vibration characteristics of prefabricated steel-concrete composite beam bridges with clustered grouping bolt connection and analysis of vehicle-bridge coupling [J]. Journal of Jilin University(Engineering and Technology Edition), 2025, 55(7): 2354-2364.
[2] Yong-jun ZHOU,Feng-rui MU,Cheng CAI,Fan YANG. Influence factors of preload loss in cable clamp bolt of suspension bridge based on orthogonal experiment method [J]. Journal of Jilin University(Engineering and Technology Edition), 2025, 55(4): 1188-1196.
[3] Mi ZHOU,Xing-wang TIAN,Guo-qiang ZHU,Lei MA. Direct shear strength of UHPC wet joints in precast piers [J]. Journal of Jilin University(Engineering and Technology Edition), 2025, 55(12): 3928-3941.
[4] Fu-cheng ZHOU,Yuan-hai ZHANG,Yan-hong WEI. Transverse bending moment analysis considering the influence of the distortion warping stress distribution range of the corrugated steel webs [J]. Journal of Jilin University(Engineering and Technology Edition), 2025, 55(11): 3498-3506.
[5] Rui-zheng WANG,Yuan-hai ZHANG. Distortion effect of supported curved steel box composite girders with corrugated webs and flexible diaphragms [J]. Journal of Jilin University(Engineering and Technology Edition), 2025, 55(11): 3641-3652.
[6] Yong CHEN,Ao-bo ANZHUO,Jiao-jiao ZHANG. Bridge crack detection method based on rotation self-attention improved Mask RCNN [J]. Journal of Jilin University(Engineering and Technology Edition), 2025, 55(11): 3660-3672.
[7] Yu-xin XUE,Yong-jun ZHOU,Ye-lu WANG,Kai-xiang FAN,Yu ZHAO. Application of dynamic load allowance test method of simply supported girder bridge based on suspension hammer system [J]. Journal of Jilin University(Engineering and Technology Edition), 2024, 54(9): 2557-2567.
[8] Yong-xin SUN,Peng-zhen LIN,Zi-jiang YANG,Wei JI. Calculation method for crack width of UHPC beams considering bond slip effect [J]. Journal of Jilin University(Engineering and Technology Edition), 2024, 54(9): 2600-2608.
[9] Bao-dong LIU,Fang LI,Xiao-xi WANG,Meng GAO. Flexural stiffness and bearing capacity of corrugated steel plate composite structures reinforced by concrete [J]. Journal of Jilin University(Engineering and Technology Edition), 2024, 54(9): 2502-2510.
[10] Xue-lian GUO,Wan-shui HAN,Tao WANG,Kai ZHOU,Xiu-shi ZHANG,Shu-ying ZHANG. Assessment method of resistant overturning stability safety factors of curved bridge under customized transport vehicles [J]. Journal of Jilin University(Engineering and Technology Edition), 2024, 54(8): 2229-2237.
[11] Lin XIAO,Huan-bo WEI,Xing WEI,Zhi-rui KANG. Numerical analysis on cracking behavior of concrete slab due to corrosion expansion of stud connector in steel-concrete composite beam [J]. Journal of Jilin University(Engineering and Technology Edition), 2024, 54(7): 1958-1965.
[12] Han-hui HUANG,Kang-ming CHEN,Qing-xiong WU. Flexural behavior of composite continuous girders with concrete-filled steel tubular truss chords [J]. Journal of Jilin University(Engineering and Technology Edition), 2024, 54(6): 1665-1676.
[13] Chun-lei ZHANG,Chang-yu SHAO,Qing-tian SU,Chang-yuan DAI. Experimental on positive bending behaviour of composite bridge decks with steel-fiber-reinforced concrete and longitudinal bulb-flat ribs [J]. Journal of Jilin University(Engineering and Technology Edition), 2024, 54(6): 1634-1642.
[14] Chang-jiang SHAO,Hao-meng CUI,Qi-ming QI,Wei-lin ZHUANG. Longitudinal seismic mitigation of near⁃fault long⁃span RC soft⁃lighten arch bridge based on viscous damper [J]. Journal of Jilin University(Engineering and Technology Edition), 2024, 54(5): 1355-1367.
[15] Qiu ZHAO,Peng CHEN,Yu-wei ZHAO,Ao YU. Overall mechanical performance of jointless bridges with arch structure behind abutment [J]. Journal of Jilin University(Engineering and Technology Edition), 2024, 54(4): 1016-1027.
Viewed
Full text


Abstract

Cited

  Shared   
  Discussed   
No Suggested Reading articles found!