Journal of Jilin University(Engineering and Technology Edition) ›› 2025, Vol. 55 ›› Issue (11): 3498-3506.doi: 10.13229/j.cnki.jdxbgxb.20240095

Previous Articles    

Transverse bending moment analysis considering the influence of the distortion warping stress distribution range of the corrugated steel webs

Fu-cheng ZHOU(),Yuan-hai ZHANG(),Yan-hong WEI   

  1. School of Civil Engineering,Lanzhou Jiaotong University,Lanzhou 730070,China
  • Received:2024-01-25 Online:2025-11-01 Published:2026-02-03
  • Contact: Yuan-hai ZHANG E-mail:zhoufc@163.com;zyh17012@163.com

Abstract:

In order to study the reasonable calculation method of the transverse bending moment of the composite box girder with corrugated steel webs and the influence of the distortion warping stress distribution range of the corrugated steel webs on the transverse bending moment, Based on the traditional TYL frame method, considering the deformation coordination relationship between distortion displacement and sheet frame displacement, this paper proposes a transverse bending moment frame analysis method for composite box girder with corrugated steel webs by using a new calculation model that meets the equilibrium conditions, and a general formula for calculating the transverse bending moment is established. In view of the three different distortion warping stress distribution range of corrugated steel webs, the transverse bending moments at each key point of the straight webs and inclined webs composite box girder with corrugated steel webs were calculated by two frame analytical methods and finite element methods. The results show that for the straight webs box girder, the method proposed in this paper has the same calculation accuracy as the existing calculation method. For the inclined webs box girder, the transverse bending moment calculated by the proposed method is consistent with the distribution law of the calculation results of the finite element method, and the proposed method has higher calculation accuracy than the existing calculation methods. The different webs distortion warping stress distribution ranges of the composite box girder with corrugated steel webs have little influence on the results of the transverse bending moment, and when the transverse bending moment is actually calculated, it can be considered that the corrugated steel webs does not bear the distortion warping stress.

Key words: bridge and tunnel engineering, corrugated steel web, composite box girder, frame analysis, transverse bending moment, distortion warp stress

CLC Number: 

  • U448.36

Fig.1

Box girder load"

Fig. 2

Schematic diagram of the support form and its decomposition"

Fig. 3

Cross-sectional dimensions of the frame and the shear differential load"

Fig. 4

Distortion warping stress distribution 1"

Fig. 5

Distortion warping stress distribution2"

Fig. 6

Distortion warping stress distribution 3"

Fig. 7

Frame shear force diagram"

Fig. 8

Schematic diagram of the calculation model of the traditional "TYL" framework method"

Fig. 9

New framework method computational model"

Fig. 10

Schematic diagram of the distortion of the frame"

Fig. 11

Schematic diagram of corrugated steel web structure"

Fig. 12

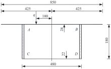
Schematic diagram of the calculation cross-section (cm)"

Table 1

Geometric properties of a unit length frame in a mid-span section"

物理量计算值
Io19.055 6×10-4 m4/m
Iu9.243 1×10-4 m4/m
Ic1.131 4×10-4 m4/m
Js14.329 6 m4
Jx2.027 5 m4
Jh9.631 1×10-2m4
β17.067 5
β26.045 0
β34.013 6

Table 2

Critical parameters in the release support process"

项目Qs/(kN·m-1

Qx/

(kN·m-1

MA'MB')/(kN·m·m-1MC'/(MD')/(kN·m·m-1
1new0.384 00.306 10.921 60.734 7
2new0.406 80.324 30.976 30.778 4
3new0.384 30.306 40.922 40.735 4
1y0.384 00.306 10.921 60.734 7
2y0.406 80.324 30.976 30.778 4
3y0.384 30.306 40.922 40.735 4

Table 3

The transverse moment of the mid-span section"

横向弯矩(kN·m·m-1ABCDF
M刚性支承-3.877 0-3.037 20.546 90.334 27.934 6
M1new-2.955 4-3.958 8-0.187 81.068 98.126 6
M1y-2.955 4-3.958 8-0.187 81.068 98.126 6
M2new-2.957 8-3.956 3-0.185 91.067 08.126 1
M2y-2.957 8-3.956 3-0.185 91.067 08.126 1
M3new-2.954 6-3.959 6-0.188 51.069 68.126 8
M3y-2.954 6-3.959 6-0.188 51.069 68.126 8

Table 4

Relative error of the transverse moment of the mid-span section"

相对误差ABCDF
δ120.080.061.050.180.01
δ130.030.020.350.060.00

Fig.13

Schematic diagram of cross-section calculation of oblique web box girder (cm)"

Fig. 14

Single-band corrugated steel web size (mm)"

Table 5

Geometric properties of a unit length frame in a mid-span section"

物理量计算值
Io19.055 6×10-4 m4/m
Iu19.055 6×10-4 m4/m
Ic8.232 0×10-5 m4/m
Js7.017 8 m4
Jx0.235 1 m4
Jh320.140 8×10-2 m4
β116.116 0
β211.473 1
β35.239 2

Fig. 15

Distribution diagram of bending moment of virtual support in mid-span section (kN·m/m)"

Table 6

Critical parameters in the release support process"

项目η1ηm

Qs/

(kN·m-1

Qx/

(kN·m-1

MA'MB')/(kN·m·m-1MC'MD')/(kN·m·m-1
1new1.712 31.347 40.191 70.478 40.383 40.516 6
2new1.712 31.347 40.191 40.477 50.382 70.515 7
3new1.712 31.347 40.191 40.477 70.382 90.515 9
1y1.713 10.887 40.253 40.416 50.506 90.449 8
2y1.713 10.887 40.253 00.415 70.505 90.449 0
3y1.713 10.887 40.253 00.415 90.506 10.449 1

Fig. 16

Schematic diagram of the distribution of the bending moment of the rigid support released in the mid-span section"

Table 7

Transverse moment of the mid-span section"

横向弯矩/(kN·m·m-1ABCDF
M1new-1.950 2-2.206 20.367 11.171 77.328 8
M1y-1.826 8-2.329 60.433 91.104 97.359 7
M2new-1.950 9-2.205 50.368 11.170 87.328 6
M2y-1.827 7-2.328 60.434 81.104 07.359 4
M3new-1.950 8-2.205 60.367 91.170 97.328 7
M3y-1.827 6-2.328 80.434 61.104 27.359 5
M有限元-2.112 8-2.400 40.323 41.154 07.198 6

Table 8

Comparison of the relative error of the transverse moment of the mid-span cross-section"

相对误差ABCDF
δ1new7.698.0913.521.531.81
δ2new7.668.1213.811.451.81
δ3new7.678.1213.761.471.81
δ1y13.542.9534.174.252.24
δ2y13.492.9934.444.332.23
δ3y13.502.9834.394.322.23
[1] 徐强, 万水. 波形钢腹板PC组合箱梁桥设计与应用[M]. 北京: 人民交通出版社, 2009.
[2] 尼颖升, 孙启鑫, 马晔, 等. 基于拉应力域的波形钢腹板组合梁承载力配筋计算[J]. 吉林大学学报: 工学版, 2018, 48(1): 148-158.
Ni Ying-sheng, Sun Qi-xin, Ma Ye, et al. Calculation of capacity reinforcement about composite box girder with corrugated steel webs based on tensile stress region theory[J]. Journal of Jilin University (Engineering and Technology Edition), 2018, 48(1): 148-158.
[3] 李宏江. 波形钢腹板PC组合箱梁几个特殊问题研究进展[J]. 应用基础与工程科学学报, 2018, 26(2): 440-454.
Li Hong-jiang. Review on special issues in prestressed concrete box girders with corrugated steel webs[J]. Journal of Basic Science and Engineering, 2018, 26(2): 440-454.
[4] 郭金琼, 房贞政, 郑振. 箱形梁设计理论[M]. 北京: 人民交通出版社, 2008.
[5] 徐勋, 强士中. 薄壁箱梁畸变分析理论的研究[J]. 工程力学, 2013, 30(11): 192-201.
Xu Xun, Qiang Shi-zhong. Research on distortion analysis theory of thin-walled box girder[J]. Engineering Mechanics, 2013, 30(11): 192-201.
[6] Xu X, Ye H W, Zhang D Y, et al. A unified theory for distortion analysis of thin-walled hollow sections[J]. International Journal of Steel Structures, 2019, 19(3): 769-786.
[7] Iván C, Ramón Ó R, Francisco C. Distortion analysis of horizontally curved trapezoidal box girder bridges[J]. Engineering Structures, 2023, 282: 115798.
[8] 郭金琼, 郑震. 带伸臂箱梁桥横向内力分析[J]. 土木工程学报, 1986(3): 59-72.
Guo Jin-qiong, Zheng Zhen. Analysis of transverse internal forces in box girder bridges with cantilevers[J]. China Civil Engineering Journal, 1986(3): 59-72.
[9] 汪洋生, 张元海. 斜腹板薄壁箱梁横向内力分析及其参数影响研究[J]. 铁道学报, 2017, 39(3): 104-111.
Wang Yang-sheng, Zhang Yuan-hai. Research on transverse internal force and its parameter influence of thin-walled box girders with inclined webs[J]. Journal of the China Railway Society, 2017, 39(3): 104-111.
[10] 王晨光, 张元海, 汪洋生. 斜腹板薄壁箱梁横向内力的改进分析方法[J]. 铁道学报, 2021, 43(9): 127-132.
Wang Chen-guang, Zhang Yuan-hai, Wang Yang-sheng. Transverse internal force analysis on box girder based on external load correction[J]. Journal of the China Railway Society, 2021, 43(9): 127-132.
[11] 王晨光, 张元海. 基于外荷载修正的箱形梁横向内力分析[J]. 东南大学学报: 自然科学版, 2021, 51(1): 23-29.
Wang Chen-guang, Zhang Yuan-hai. Transverse internal force analysis on box girder based on external load correction[J]. Journal of Southeast University(Natural Science Edition), 2021, 51(1): 23-29.
[12] 王兆南, 张元海. 考虑畸变影响的箱梁横向弯矩计算方法[J]. 计算力学学报, 2020, 37(2): 151-158.
Wang Zhao-nan, Zhang Yuan-hai. Calculation methods of transverse bending moment of box girder considering the distortional influence[J]. Chinese Journal of Computational Mechanics, 2020, 37(2): 151-158.
[13] Kurian B, Menon D. Correction of errors in simplified transverse bending analysis of concrete box-girder bridges[J]. Journal of Bridge Engineering, 2005, 10(6): 650-657.
[14] Kurian B, Menon D. Simplified method for transverse bending analysis of concrete box-girder bridges[J]. Journal of Structural Engineering, 2006, 33(2): 121-127.
[15] Kurian B, Menon D. Transverse bending analysis of concrete box-girder bridges with flange overhangs[J]. Journal of Structural Engineering, 2008, 35(3): 173-179.
[16] Kurian B, Menon D. Correction of errors in simplified transverse bending analysis of concrete box-girder bridges[J]. Journal of Bridge Engineering, 2005, 10(6): 650-657.
[17] Chithra J, Praveen N, Arumughom S S. Transverse bending analysis of twin-cell concrete box girder bridges using simplified frame analysis[J]. Practice Periodical on Structural Design and Construction, 2023, 28(2): 04020004.
[18] 黎雅乐, 杨丙文, 张建东. 单箱室波形钢腹板梁桥横向弯矩计算方法[J]. 中南大学学报:自然科学版, 2016, 47(8): 2802-2809.
Li Ya-le, Yang Bing-wen, Zhang Jian-dong. Transverse moment of PC single box-girder bridge with corrugated steel webs[J]. Journal of Central South University (Science and Technology), 2016, 47(8): 2802-2809.
[19] 赵品, 叶见曙. 波形钢腹板组合箱梁桥面板横向内力计算的框架分析法[J]. 东南大学学报:自然科学版, 2012, 42(5): 940-944.
Zhao Pin, Ye Jian-shu. Frame analysis method of transverse internal force in bridge deck of box girders with corrugated steel webs[J]. Journal of Southeast University (Natural Science Edition), 2012, 42(5): 940-944.
[20] 贾慧娟, 戴航, 张建东. 波形钢腹板组合梁桥横向受力研究[J]. 工程力学, 2014, 31(12): 76-82.
Jia Hui-juan, Dai Hang, Zhang Jian-dong. Research on transverse internal forces in box-girder bridges with corrugated steel webs[J]. Engineering Mechanics, 2014, 31(12): 76-82.
[21] 王兆南, 张元海. 单箱双室波形钢腹板组合箱梁横向内力研究[J]. 铁道学报, 2019, 41(12): 106-112.
Wang Zhao-nan, Zhang Yuan-hai. Research on transverse internal force of single box double cell composite box girder with corrugated steel webs[J]. Journal of the China Railway Society, 2019, 41(12): 106-112.
[1] Hao ZHANG,Yi-yan CHEN,Jun-yu YE,Ju-can DONG,Qiu ZHAO. Experiment on bending-torsional performance of super- span box girders with corrugated steel webs [J]. Journal of Jilin University(Engineering and Technology Edition), 2026, 56(1): 209-218.
[2] Fang-xu WANG,Shi-zhong LIU,Xia-lin YANG,Ning JIANG,Xin-yi LIU,Chi MA. Calculation method of deflection of composite box beam with considering the deformation of the steel truss web [J]. Journal of Jilin University(Engineering and Technology Edition), 2025, 55(8): 2619-2629.
[3] Ya-na MAO,Shi-zhong LIU,Jian XING,Hua YANG,Yu-bo JIAO. Bond⁃slip characterization between ultra⁃high performance glass sand concrete and high⁃strength reinforcement based on acoustic emission parameters [J]. Journal of Jilin University(Engineering and Technology Edition), 2023, 53(6): 1686-1694.
[4] Jian-qing BU,Zhi-bo GUO,Ji-ren ZHANG,Jing-chuan XUN,Xiao-ming HUANG. Finite element analysis method for mechanical properties of steel⁃concrete composite beam bridges with multiple damages [J]. Journal of Jilin University(Engineering and Technology Edition), 2023, 53(6): 1621-1637.
[5] Zhi-qiang HAN,Gang XIE,Yong-jun ZHOU,Shi-zhong LIU,Min-jie JIN. Numerical analysis method of vehicle⁃bridge coupling vibration of curved bridge [J]. Journal of Jilin University(Engineering and Technology Edition), 2023, 53(2): 515-522.
[6] Jin-song ZHU,Ya-ting QIN,Zhou-qiang LIU. Section optimization design of prestressed UHPC-NC composite beams [J]. Journal of Jilin University(Engineering and Technology Edition), 2023, 53(11): 3151-3159.
[7] Guo-jun YANG,Qi-wei TIAN,Ming-hang LYU,Yong-feng DU,Guang-wu TANG,Zong-jian HAN,Yi-duo FU. Review of mechanic characteristics of tunnel⁃type anchorage of long⁃span suspension bridge [J]. Journal of Jilin University(Engineering and Technology Edition), 2022, 52(6): 1245-1263.
[8] Zhi-yuan YUANZHOU,Bo-hai JI,Jun-yuan XIA,Tong SUN. Pneumatic impact test on rib⁃to⁃diaphragm fatigue crack of steel box girder [J]. Journal of Jilin University(Engineering and Technology Edition), 2022, 52(12): 2883-2891.
[9] Chun-liang LI,Zhi-hao LIN,Luo-luo ZHAO. Effect of damaged hinge joint and damaged slab on transverse force of hollow slab bridge [J]. Journal of Jilin University(Engineering and Technology Edition), 2021, 51(2): 611-619.
[10] NI Ying-sheng,SUN Qi-xin,MA Ye,XU Dong,LIU Chao. Shear distribution of multi-cell corrugated steel web composite beams based on space grid analysis [J]. Journal of Jilin University(Engineering and Technology Edition), 2018, 48(6): 1735-1746.
[11] NI Ying-sheng, SUN Qi-xin, MA Ye, XU Dong. Calculation of capacity reinforcement about composite box girder with corrugated steel webs based on tensile stress region theory [J]. 吉林大学学报(工学版), 2018, 48(1): 148-158.
[12] NI Ying-sheng, MA Ye, XU Dong, LI Jin-kai. Space mesh analysis method for shear lag effect of cable-stayed bridge with corrugated steel webs [J]. 吉林大学学报(工学版), 2017, 47(5): 1453-1464.
Viewed
Full text


Abstract

Cited

  Shared   
  Discussed   
No Suggested Reading articles found!