Journal of Jilin University(Engineering and Technology Edition) ›› 2025, Vol. 55 ›› Issue (10): 3262-3273.doi: 10.13229/j.cnki.jdxbgxb.20231438

Previous Articles    

Shear deformation and failure characteristics of precast utility tunnel joints by foundation

Chao ZHANG1,2(),Zheng-rong ZHAO1,2,You-jun XU1,2,Xu-zhi NIE1,2   

  1. 1.School of Civil Engineering,Inner Mongolia University of Science and Technology,Baotou 014010,China
    2.Research Center of Urban Underground Engineering at Universities of Inner Mongolia,Baotou 014010,China
  • Received:2023-12-25 Online:2025-10-01 Published:2026-02-03

Abstract:

In order to obtain the shear deformation law and failure characteristics of precast utility tunnel joints under different foundations, this paper comprehensively considers the influence of the structural characteristics of utility tunnel joints and the foundation, and reveals the influence of foundation conditions on the shear performance of utility tunnel joints through model tests. The results show that the socket joints of the precast utility tunnel with connectors have good ductility and can meet the requirements of use when the utility tunnel is subjected to shear load under gravelly sand, silty clay and clay foundations. When the utility tunnel bears the same load, with the increase of the foundation stiffness, the dislocation of the utility tunnel will decrease, but the damage range of the joint will expand and the damage will be more serious, the final joint damage area accounts for about 15 % of the whole utility tunnel. The bearing end of the joint is more seriously damaged than the socket end, and the cracks in the chamfer position, near the bolt hole and at the top and the bottom are the most concentrated. It is recommended to strengthen the above positions locally. With the increase of dislocation, the longitudinal connector has gradually become the main force component of the joint to resist shear deformation, which plays an important role in improving the shear capacity of the joint and the integrity of the joint.

Key words: bridge and tunnel engineering, precast utility tunnel, joint, model test, shear performance

CLC Number: 

  • U451

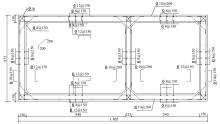
Fig.1

Structure of utility tunnel joints(unit: mm)"

Fig.2

Cross-section size of utility tunnel (unit: mm)"

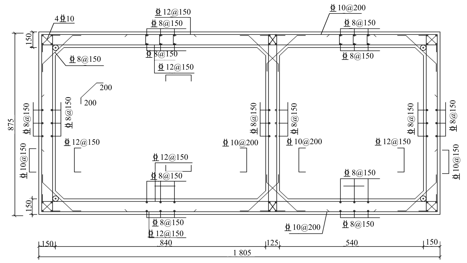
Fig.3

Utility tunnel reinforcement(unit: mm)"

Table 1

Physical and mechanical parameters for each material"

力学参数混凝土(C50)

钢筋

(HRB400)

高强螺杆

(?12)

重度/(kN·m-325.078.578.5
泊松比0.20.30.28
弹性模量/MPa34 500200 000165 000
屈服强度/MPa400850
抗压强度标准值/MPa32.4
抗拉强度标准值/MPa2.55401 050

Fig.4

Test device"

Fig.5

Layout of measuring points"

Fig.6

Layout form of springs(unit: mm)"

Table 2

Test conditions"

工况等效地基

等效地基刚度系数/

103(kN·m-3

底板面积/m2弹簧数量/个
CD-1砾砂地基5.42.899
CD-2粉质黏土地基3.62.896
CD-3黏土地基2.42.894

Fig.7

Concrete damage of utility tunnel joints"

Fig.8

Deformation of longitudinal connectors"

Fig.9

Dislocation deformation of utility tunnel"

Fig.10

Variation law of joint concrete strain under different stratum conditions"

Fig.11

Strain variation law of longitudinal connectors under different stratum conditions"

Fig.12

Shear-dislocation curve of joint"

Table 3

Joint ductility coefficient"

地基Δy/mmΔu/mmμ
砾砂2.312.15.3
粉质黏土2.915.15.2
黏土3.815.74.1
[1] Hunt D V L, Nash D, Rogers C D F. Sustainable utility placement via multi-utility tunnels[J]. Tunnelling and Underground Space Technology incorporating Trenchless Technology Research, 2014, 39: 15-26.
[2] Lin Z Z, Guo C C, Ni P P, et al. Experimental and numerical investigations into leakage behaviour of a novel prefabricated utility tunnel[J]. Tunnelling and Underground Space Technology incorporating Trenchless Technology Research,2020, 104: No. 103529.
[3] Bai Y P, Zhou R, Wu J S. Hazard identification and analysis of urban utility tunnels in China[J]. Tunnelling and Underground Space Technology incorporating Trenchless Technology Research, 2020, 106: No.103584.
[4] Wang T Y, Tan L X, Xie S Y, et al. Development and applications of common utility tunnels in China[J]. Tunnelling and Underground Space Technology Incorporating Trenchless Technology Research, 2018, 76: 92-106.
[5] 梁荣柱, 林存刚, 夏唐代, 等. 考虑隧道剪切效应的基坑开挖对邻近隧道纵向变形分析[J]. 岩石力学与工程学报, 2017, 36(1): 223-233.
Liang Rong-zhu, Lin Cun-gang, Xia Tang-dai, et al. Analysis on the longitudinal deformation of tunnels due to pit excavation considering the tunnel shearing effect[J]. Chinese Journal of Rock Mechanics and Engineering, 2017, 36(1): 223-233.
[6] 梁荣柱, 曹世安, 向黎明, 等. 地表堆载作用下盾构隧道纵向受力机制试验研究[J]. 岩石力学与工程学报, 2023, 42(3): 736-747.
Liang Rong-zhu, Cao Shi-an, Xiang Li-ming, et al. Experimental investigation on longitudinal mechanical mechanism of shield tunnels subjected to ground surface surcharge[J]. Chinese Journal of Rock Mechanics and Engineering, 2023, 42(3): 736-747.
[7] 胡翔, 薛伟辰. 预制预应力综合管廊受力性能试验研究[J]. 土木工程学报, 2010, 43(5): 29-37.
Hu Xiang, Xue Wei-chen. Experimental study of mechanical properties of PPMT[J]. China Civil Engineering Journal, 2010, 43(5): 29-37.
[8] 闫鑫雨, 余村, 翟世鸿. 分片预制装配式管廊管片接头力学性能试验研究[J]. 四川建筑科学研究, 2017, 43(6): 28-31.
Yan Xin-yu, Yu Cun, Zhai Shi-hong. Experimental study on segment joint's mechanical properties of split type prefabricated municipal tunnel[J]. Sichuan Building Science, 2017, 43(6): 28-31.
[9] 王雪亮, 王鹏宇, 王述红, 等. 预制预应力管廊接头抗弯力学研究[J].现代隧道技术, 2021, 58(1): 134-140, 167.
Wang Xue-liang, Wang Peng-yu, Wang Shu-hong, et al. Study on the bending mechanics of precast prestressed utility tunnel joints[J]. Modern Tunnelling Technology, 2021, 58(1): 134-140, 167.
[10] 付伟庆, 聂长强, 李茂, 等.预制沟道缆线管廊接头受力性能研究[J].地下空间与工程学报, 2023, 19(6): 2028-2038.
Fu Wei-qing, Nie Chang-qiang, Li Mao, et al. Study on mechanical performance of prefabricated trench cable tunnel joint[J]. Chinese Journal of Underground Space and Engineering, 2023, 19(6): 2028-2038.
[11] Wang P Y, Wang S H, Israr M K, et al. Bending mechanics model and value of transverse joints in precast prestressed utility tunnel[J]. Journal of Asian Architecture and Building Engineering, 2020, 19(3): 203-219.
[12] 凌同华, 余彬, 肖南, 等. 预制拼装综合管廊承插式接头抗剪性能研究[J]. 应用基础与工程科学学报, 2023, 31(3): 741-751.
Ling Tong-hua, Yu Bin, Xiao Nan, et al. Shear performance of bell and spigot joint of precast utility tunnel[J]. Journal of Basic Science and Engineering, 2023, 31(3): 741-751.
[13] 凌同华, 余彬, 黄阜, 等. 预制拼装综合管廊承插式接头剪切力学性能研究[J]. 地下空间与工程学报, 2023, 19(2): 541-549.
Ling Tong-hua, Yu Bin, Huang Fu, et al. Shear mechanical properties of bell and spigot joint of precast utility tunnel[J]. Chinese Journal of Underground Space and Engineering, 2023, 19(2): 541-549.
[14] 陈小赞, 杨灵, 张宸浩, 等.预制双舱综合管廊拼装接头力学特性数值研究[J]. 工程建设, 2018, 50(11): 8-14.
Chen Xiao-zan, Yang Ling, Zhang Chen-hao, et al. Numerical study on mechanical characteristics of joint of precast two-compartment utility tunnel[J]. Engineering Construction, 2018, 50(11): 8-14.
[15] 王鹏宇, 朱承金, 王述红, 等.预制管廊横向接头抗弯力学模型及取值方法[J].东北大学学报: 自然科学版, 2020, 41(5): 629-634.
Wang Peng-yu, Zhu Cheng-jin, Wang Shu-hong, et al. Bending mechanical model of transverse joints in precast prestressed municipal tunnel and its value method[J]. Journal of Northeastern University(Natural Science), 2020, 41(5): 629-634.
[16] 程新俊, 景立平, 崔杰, 等. 沉管隧道管节接头剪切破坏试验[J].中国公路学报, 2020, 33(4): 99-105.
Cheng Xin-jun, Jing Li-ping, Cui Jie, et al. Experimental failure analysis on immersed tunnel joint subjected to shear loading[J]. China Journal of Highway and Transport, 2020, 33(4): 99-105.
[17] 许有俊, 庞跃魁, 张朝, 等. 矩形顶管隧道F型承插接头剪切性能研究[J]. 浙江大学学报: 工学版, 2023, 57(5): 957-966.
Xu You-jun, Pang Yue-kui, Zhang Chao, et al. Shear performance of F-type socket joint in rectangular pipe jacking tunnel[J]. Journal of Zhejiang University (Engineering Science), 2023, 57(5): 957-966.
[18] 袁勇, 禹海涛, 萧文浩, 等. 沉管隧道管节接头混凝土剪力键压剪破坏试验研究[J]. 工程力学, 2017, 34(3): 149-154, 181.
Yuan Yong, Yu Hai-tao, Xiao Wen-hao, et al. Experimental failure analysis on concrete shear keys in immersion joint subjected to compression-shear loading[J]. Engineering Mechanics, 2017, 34(3): 149-154, 181.
[19] 赵远清, 赵怡薇, 伍云天, 等.综合管廊变形缝抗剪锚筋往复加载试验研究[J]. 土木工程学报, 2020, 53(9): 14-21.
Zhao Yuan-qing, Zhao Yi-wei, Wu Yun-tian, et al. Experimental study on shear anchor bars of deformation joint in utility tunnel under cyclic loading[J]. China Civil Engineering Journal, 2020, 53(9): 14-21.
[20] 许成顺, 韩润波, 杜修力, 等.考虑土-结构相互作用的弹簧-地下结构体系静力推覆试验技术及其试验研究[J].建筑结构学报, 2023, 44(1): 248-258.
Xu Cheng-shun, Han Run-bo, Du Xiu-li, et al. Static pushover test technology and experimental study of spring-underground structure system considering soil-structure interaction[J]. Journal of Building Structures, 2023, 44(1): 248-258.
[21] 张迪, 徐幼建, 廖少明, 等. 盾构隧道凹凸榫-斜螺栓形式环缝径向顺剪抗剪刚度研究[J]. 隧道建设, 2023, 43(2): 228-239.
Zhang Di, Xu You-Jian, Liao Shao-ming, et al. Radial shear stiffness of circumferential joint along shear direction with concave-convex tenon and diagonal bolt in shield tunnel[J]. Tunnel Construction, 2023, 43(2): 228-239.
[1] Hao ZHANG,Yi-yan CHEN,Jun-yu YE,Ju-can DONG,Qiu ZHAO. Experiment on bending-torsional performance of super- span box girders with corrugated steel webs [J]. Journal of Jilin University(Engineering and Technology Edition), 2026, 56(1): 209-218.
[2] Hong-zhe ZHANG,Yu-xin JIA,Yong-jie BAO,Yu-xing YANG. Stiffness prediction model of thermoplastic composites-metal bonded-riveted hybrid joints [J]. Journal of Jilin University(Engineering and Technology Edition), 2026, 56(1): 131-139.
[3] Ling LI,Zhi-wen JIANG,Dong-hao MIAO,Miao-xia XIE,Fu-an CHENG. Stiffness characteristics of bolt connection of composite laminates under secondary bending [J]. Journal of Jilin University(Engineering and Technology Edition), 2025, 55(8): 2520-2529.
[4] Fang-xu WANG,Shi-zhong LIU,Xia-lin YANG,Ning JIANG,Xin-yi LIU,Chi MA. Calculation method of deflection of composite box beam with considering the deformation of the steel truss web [J]. Journal of Jilin University(Engineering and Technology Edition), 2025, 55(8): 2619-2629.
[5] Lian-lian ZHANG,Wei GUO,Feng LIU. Detection of mixed attribute features of multi-source heterogeneous data in software defined IoT [J]. Journal of Jilin University(Engineering and Technology Edition), 2025, 55(8): 2746-2752.
[6] Gui-shen YU,Xin CHEN,Yue TANG,Chun-hui ZHAO,Ai-jia NIU,Hui CHAI,Jing-xin NA. Effect of laser surface treatment on the shear strength of aluminum-aluminum bonding joints [J]. Journal of Jilin University(Engineering and Technology Edition), 2025, 55(8): 2555-2569.
[7] Shun-sheng ZHANG,Long DU,Wen-qin WANG. Low probability of interception radar waveform design based on joint coding of complementary phase and discrete chaotic frequency [J]. Journal of Jilin University(Engineering and Technology Edition), 2025, 55(7): 2434-2443.
[8] You-sheng DENG,Zhi-gang YAO,Ya-feng GONG,Zhong-ju FENG,Long LI,Ke-qin ZHANG. Model test and calculating analysis on vertical bearing mechanism of slotted pile [J]. Journal of Jilin University(Engineering and Technology Edition), 2025, 55(7): 2308-2319.
[9] Mei-xia JIA,Jian-jun HU,Feng XIAO. Multi⁃physics simulation method of vehicle motor under varying working conditions based on multi⁃software combination [J]. Journal of Jilin University(Engineering and Technology Edition), 2025, 55(6): 1862-1872.
[10] Ling LI,Hui-tao TIAN,Dong-hao MIAO,Miao-xia XIE,Fu-an CHENG. Analysis of relaxation characteristics of multi-bolted connections under the transverse cyclic load [J]. Journal of Jilin University(Engineering and Technology Edition), 2025, 55(5): 1525-1535.
[11] Mi ZHOU,Xing-wang TIAN,Guo-qiang ZHU,Lei MA. Direct shear strength of UHPC wet joints in precast piers [J]. Journal of Jilin University(Engineering and Technology Edition), 2025, 55(12): 3928-3941.
[12] Fu-cheng ZHOU,Yuan-hai ZHANG,Yan-hong WEI. Transverse bending moment analysis considering the influence of the distortion warping stress distribution range of the corrugated steel webs [J]. Journal of Jilin University(Engineering and Technology Edition), 2025, 55(11): 3498-3506.
[13] Lai-wei JIANG,Ce WANG,Hong-yu YANG. Review of multi-object tracking based on deep learning [J]. Journal of Jilin University(Engineering and Technology Edition), 2025, 55(11): 3429-3445.
[14] Li-hong HAN,Yong-guo LIU. Sshear performance of cold-formed thin-wall composite steel walls with different sections [J]. Journal of Jilin University(Engineering and Technology Edition), 2025, 55(10): 3221-3227.
[15] Hao JIANG,Zheng-wen ZHAO. Experiment on shear performance of RC beams strengthened with basalt fiber grid cement-based composites [J]. Journal of Jilin University(Engineering and Technology Edition), 2025, 55(1): 211-220.
Viewed
Full text


Abstract

Cited

  Shared   
  Discussed   
No Suggested Reading articles found!