吉林大学学报(工学版) ›› 2025, Vol. 55 ›› Issue (12): 3862-3874.doi: 10.13229/j.cnki.jdxbgxb.20240359
• 交通运输工程·土木工程 • 上一篇
Dao-bin WANG(
),Hui-hui ZHAO,Yuan-yuan XU,Zu-peng LIU
摘要:
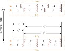
针对现阶段交叉口自适应控制算法存在控制迭代效率低、模型复杂度高的问题,基于相位内队列消散情况提出了一种自适应控制算法。首先,建立参数预测模型实现配时参数优化,并基于车流波动理论计算得到车辆在交叉口处的停车延误;其次,基于速度变化曲线计算得到车辆进入和驶出交叉口时的加、减速延误;最后,提出状态转移矩阵用于延误最小化动态优化模型的构建,进而实现交叉口信号控制的全阶段优化。将固定配时控制和感应控制作为对照组,发现超高负荷交通流场景下本文方法相较于两个对照组,车均延误分别减少了55%和27.8%,平均停车次数减少了58.5%和10.1%;高负荷交通流场景下车均延误分别减少了36.1%和14.6%,平均停车次数减少了23.4%和8.7%;中负荷交通流场景下车均延误分别减少了22.8%和10.5%,平均停车次数减少了3.3%和2.6%。结果表明:在不同的交通流负荷条件下,本文算法均能有效提高交叉口的运行效率。
中图分类号:
| [1] | Tang K, Boltze M, Nakamura H, et al. Global Practices on Road Traffic Signal Control: Fixed-time Control at Isolated Intersections[M]. Amsterdam: Elsevier, 2019. |
| [2] | Sims A G, Dobinson K W. The Sydney coordinated adaptive traffic (SCAT) system philosophy and benefits[J]. IEEE Transactions on Vehicular Technology, 1980, 29(2): 130-137. |
| [3] | Robertson D I, Bretherton R D. Optimizing networks of traffic signals in real time-the SCOOT method[J]. IEEE Transactions on Vehicular Technology, 1991, 40(1): 11-15. |
| [4] | Lin F, Vijayakumar S. Adaptive signal control at isolated intersections[J]. Journal of Transportation Engineering, 1988, 114(5): 555-573. |
| [5] | Miller A J. A computer control system for traffic networks[C]∥Proceedings of the 2nd International Symposium on the Theory of Traffic Flow, London, UK,1963: 200-220. |
| [6] | Bang K L, Nilsson L E. Optimal control of isolated traffic signals[J]. IFAC Proceedings Volumes, 1976, 9(4): 173-184. |
| [7] | Lin F B, Cooke D, Vrijayakumar S. Use of predicted vehicle arrival information for adaptive signal control-an assessment[J]. Transportation Research Record, 1987, 1112(1): 89-98. |
| [8] | Gartner N. OPAC:a demand-responsive strategy for traffic signal[J]. Transportation Research Record, 1983, 906(1): 75-81. |
| [9] | Zheng X, Recker W. An adaptive control algorithm for traffic-actuated signals[J]. Transportation Research Part C: Emerging Technologies, 2013, 30: 93-115. |
| [10] | Head L. Event-based short-term traffic flow prediction model[J]. Transportation Research Record, 1995, 1510(1): 45-52. |
| [11] | Comert G. Simple analytical models for estimating the queue lengths from probe vehicles at traffic signals[J]. Transportation Research Part B: Methodological, 2013, 55: 59-74. |
| [12] | Cai C, Wong C K, Heydecker B G. Adaptive traffic signal control using approximate dynamic programming[J]. Transportation Research Part C: Emerging Technologies, 2009, 17(5): 456-474. |
| [13] | Genders W, Razavi S. Asynchronous n-step Q-learning adaptive traffic signal control[J]. Journal of Intelligent Transportation Systems, 2019, 23(4): 319-331. |
| [14] | Zheng Y, Zhang Y, Hu J. Iterative learning based adaptive traffic signal control[J]. Journal of Transportation Systems Engineering and Information Technology, 2010, 10(6): 34-40. |
| [15] | 陆丽萍, 程垦, 褚端峰, 等. 基于竞争循环双Q网络的自适应交通信号控制[J]. 中国公路学报, 2022, 35(8): 267-2777. |
| Lu Li-ping, Cheng Ken, Chu Duan-feng, et al. Adaptive traffic signal control based on dueling recurrent double Q network[J]. China Journal of Highway and Transport, 2022, 10(6):34-40. | |
| [16] | Stevanovic A. Adaptive Traffic Control Systems: Domestic and Foreign State of Practice[M]. Washington, DC:Transportation Research Board, 2010. |
| [17] | Akcelik R. Estimation of green times and cycle time for vehicle-actuated signals[J]. Transportation Research Record, 1994, 1457(1): 63-72. |
| [18] | Viti F, Van Zuylen H J. A probabilistic model for traffic at actuated control signals[J]. Transportation Research Part C: Emerging Technologies, 2010, 18(3): 299-310. |
| [19] | Zhang G, Wang Y. Optimizing minimum and maximum green time settings for traffic actuated control at isolated intersections[J]. IEEE Transactions on Intelligent Transportation Systems, 2011, 12(1): 164-173. |
| [20] | Shirvani Shiri M J, Maleki H R. Maximum green time settings for traffic-actuated signal control at isolated intersections using fuzzy logic[J]. International Journal of Fuzzy Systems, 2017, 19(1): 247-256. |
| [21] | Lee S, Wong S C. Group-based approach to predictive delay model based on incremental queue accumulations for adaptive traffic control systems[J]. Transportation Research Part B: Methodological, 2017, 98: 1-20. |
| [22] | Lee S, Wong S C, Varaiya P. Group-based hierarchical adaptive traffic-signal control Part II: Implementation[J]. Transportation Research Part B: Methodological, 2017, 104: 376-397. |
| [23] | Liu H, Balke K N, Lin W H. A reverse causal-effect modeling approach for signal control of an oversaturated intersection[J]. Transportation Research Part C: Emerging Technologies, 2008, 16(6): 742-754. |
| [24] | Ren Y, Wang Y, Yu G, et al. An adaptive signal control scheme to prevent intersection traffic blockage[J]. IEEE Transactions on Intelligent Transportation Systems, 2016: 1-10. |
| [25] | 骆旅舟, 谈超鹏, 唐克双. 基于电警数据的单点自适应信号控制优化方法[J]. 同济大学学报, 2022, 50(12): 1798-1808. |
| Luo Lü-zhou, Tan Chao-peng, Tang Ke-shuang. Adaptive signal control optimization for isolated intersection based on E-police data[J]. China Journal of Highway and Transport, 2022, 50(12):1798-1808. | |
| [26] | Institute of Transportation Engineers (ITE). Traffic Control Devices Handbook[M]. Washington, DC:Institute of Transportation Engineers, 2001. |
| [27] | Wu X, Liu H X. A shockwave profile model for traffic flow on congested urban arterials[J]. Transportation Research Part B: Methodological, 2011, 45(10): 1768-1786. |
| [28] | Billah B, King M L, Snyder R D, et al. Exponential smoothing model selection for forecasting[J]. International Journal of Forecasting, 2006, 22(2): 239-247. |
| [29] | National Research Council (U.S.). Highway Capacity Manual[M]. Washington DC.:Transportation Research Board, National Research Council, 2000. |
| [30] | Akcelik R, Biggs D C. Acceleration profile models for vehicles in road traffic[J]. Transportation Science, 1987, 21(1): 36-54. |
| [31] | Urbanik T, Tanaka A, Lozner B, et al. Signal timing manual-second edition[R]. Washington DC:Transportation Research Board, 2015. |
| [1] | 曲昭伟,王铭阳,王喆,宋现敏,张云翔,黄镜尘. 基于自动驾驶模块化车辆主辅功能分配的公交自适应调度方法[J]. 吉林大学学报(工学版), 2025, 55(9): 2946-2957. |
| [2] | 王琳虹,刘宇阳,刘子昱,鹿应佳,张宇恒,黄桂树. 基于YOLOv5的轻量化桥梁缺陷识别[J]. 吉林大学学报(工学版), 2025, 55(9): 2958-2968. |
| [3] | 范建华,张亮,王宏伟,张磊,于建群. 偏心料斗颗粒速度和体积分数分布自相似特性[J]. 吉林大学学报(工学版), 2025, 55(9): 2913-2925. |
| [4] | 张云翔,宋现敏,谢渝,湛天舒. 基于用户满意度的停车预约服务智能体行为仿真[J]. 吉林大学学报(工学版), 2025, 55(9): 2978-2984. |
| [5] | 穆长儒,徐亮,程国柱. 基于能量合理分配的外包U型钢-混凝土组合护栏防撞性能[J]. 吉林大学学报(工学版), 2025, 55(8): 2669-2680. |
| [6] | 于江波,翁剑成,林鹏飞,孙宇星,柴娇龙. 基于混合Transformer的对外客运枢纽抵站客流预测模型[J]. 吉林大学学报(工学版), 2025, 55(7): 2251-2259. |
| [7] | 戢晓峰,邓若凡,乔新,关昊天. 建成环境对共享单车时间集聚模式的非线性影响[J]. 吉林大学学报(工学版), 2025, 55(7): 2233-2242. |
| [8] | 李艳波,汪静远,陈圆媛,程绍峰,吕浩楠,陈俊硕. 面向高速公路服务区自洽能源系统的RAMS评价方法[J]. 吉林大学学报(工学版), 2025, 55(7): 2243-2250. |
| [9] | 柴树山,周志强,李海涛,徐炅旸. 基于图时空模式学习网络的路网实时交通事件自动检测方法[J]. 吉林大学学报(工学版), 2025, 55(7): 2145-2161. |
| [10] | 赵红专,吴泽健,张鑫,石胜文,李文勇,展新,许恩永,王佳明. 基于密度离散度和信息传输延迟的网联商用车弯道格子模型[J]. 吉林大学学报(工学版), 2025, 55(6): 2015-2029. |
| [11] | 闫晟煜,程铭杰,田宏策,王洪瑀,周永恒,马博浩. 封闭式景区纯电动客车调度方法[J]. 吉林大学学报(工学版), 2025, 55(6): 1984-1993. |
| [12] | 潘福全,牛远征,张丽霞,杨金顺,陈秀锋,陈德启. 智能网联环境下无信号交叉口车辆通行控制策略[J]. 吉林大学学报(工学版), 2025, 55(6): 1948-1962. |
| [13] | 潘义勇,徐家聪,尤逸文,全勇俊. 网约车出行需求影响因素多尺度空间异质性分析[J]. 吉林大学学报(工学版), 2025, 55(5): 1567-1575. |
| [14] | 秦严严,肖腾飞,罗钦中,王宝杰. 雾天高速公路车辆跟驰安全分析与控制策略[J]. 吉林大学学报(工学版), 2025, 55(4): 1241-1249. |
| [15] | 张河山,范梦伟,谭鑫,郑展骥,寇立明,徐进. 基于改进YOLOX的无人机航拍图像密集小目标车辆检测[J]. 吉林大学学报(工学版), 2025, 55(4): 1307-1318. |
|
||